Caricamento...

Il progetto vincitore del Premio Baffa Rivolta 2025

"Shelter for homeless women", Vivas Arquitectos (Spagna). Foto di José Hevia.

Il progetto vincitore della 10° edizione del premio dedicato alle migliori realizzazioni di social housing in Europa è una residenza per donne senzatetto, progettata dallo studio Vivas Arquitectos, costruita a Barcellona. Menzione speciale a un progetto di social housing intergenerazionale a Maiorca, di Emiliano López Mónica Rivera Arquitectos.

Con la decima edizione, il Premio Baffa Rivolta ha inteso individuare, premiare e divulgare i migliori progetti di edilizia sociale costruiti e consegnati tra il gennaio 2020 e il dicembre 2024 sul territorio dei 27 paesi della Comunità Europea, della Svizzera e della Gran Bretagna. Per opere di edilizia sociale si intendono le realizzazioni portate a termine per iniziativa di operatori sia pubblici che privati, vincolate da regole di assegnazione, rivolte a una domanda di abitazione permanente o temporanea che non trova risposte nel libero mercato. Un’attenzione particolare viene rivolta alla qualità complessiva dell’ambiente costruito e alla sostenibilità del progetto architettonico.


La Giuria, composta dai membri effettivi Frédéric Chartier, David Lorente Ibáñez, Marco Peverini, Enrico Scaramellini, Paola Viganò e dai membri supplenti Maite Garcia Sanchis e Mauro Marinelli, ha esaminato gli 8 progetti arrivati in seconda fase, sui 22 originariamente pervenuti, e decretato vincitore il progetto Shelter for homeless women di Vivas Arquitectos (Spagna), a cui va il premio di euro 10.000,00 € e la nomina in Giuria per la prossima edizione.


Per la Giuria "l'intervento riesce a costruire uno spazio di dignità per una popolazione fragile e abusata. Il tema, di fondamentale importanza, è stato affrontato dai progettisti raggiungendo un'alta qualità progettuale e costruttiva. Meritevole è il rapporto instaurato con il contesto urbano: non si tratta di un progetto relegato a un'area esterna della città ma al contrario sito in una zona di prestigio di Barcellona. Il progetto presenta ampi spazi comuni, alcuni dei quali aperti a utenti esterni. L’architettura presenta dei dettagli ben progettati, chiari nella loro essenzialità. Il progetto affronta il tema della sostenibilità inserendo ampi spazi bioclimatici, oltre a utilizzare materiali sostenibili: questo aspetto riesce a generare un'atmosfera accogliente, fondamentale per la qualità complessiva del progetto. Si evidenzia inoltre la capacità di assumere esigenze sociali trasformandole in occasioni architettoniche".

"Shelter for homeless women", Vivas Arquitectos (Spagna). Foto di José Hevia.

"Shelter for homeless women", Vivas Arquitectos (Spagna). Foto di José Hevia.

"Shelter for homeless women", Vivas Arquitectos (Spagna). Planimetria del contesto.

"Shelter for homeless women", Vivas Arquitectos (Spagna). Planimetria del contesto.

"Shelter for homeless women", Vivas Arquitectos (Spagna). Foto di José Hevia.

"Shelter for homeless women", Vivas Arquitectos (Spagna). Foto di José Hevia.

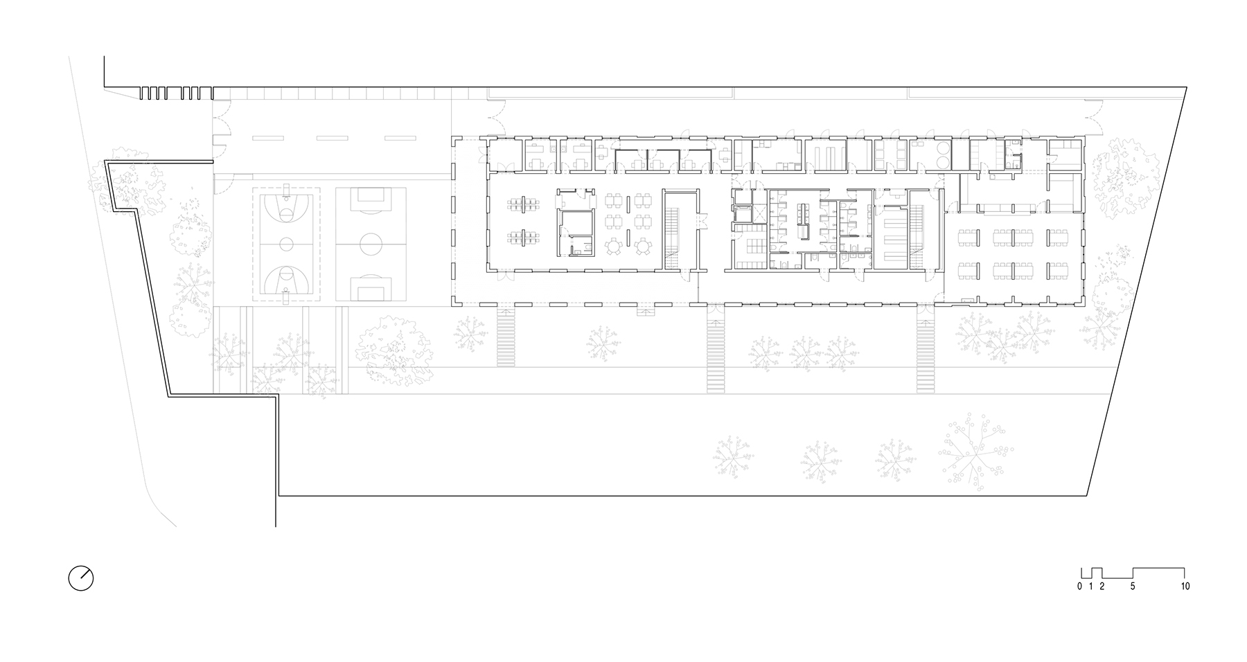
"Shelter for homeless women", Vivas Arquitectos (Spagna). Planimetria del piano terra.

"Shelter for homeless women", Vivas Arquitectos (Spagna). Planimetria del piano terra.

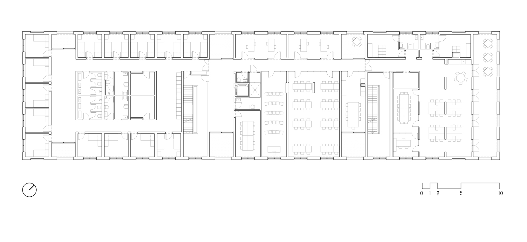
"Shelter for homeless women", Vivas Arquitectos (Spagna). Planimetria del piano primo.

"Shelter for homeless women", Vivas Arquitectos (Spagna). Planimetria del piano primo.

"Shelter for homeless women", Vivas Arquitectos (Spagna). Diagramma funzionale.

"Shelter for homeless women", Vivas Arquitectos (Spagna). Diagramma funzionale.

"Shelter for homeless women", Vivas Arquitectos (Spagna). Foto di José Hevia.

"Shelter for homeless women", Vivas Arquitectos (Spagna). Foto di José Hevia.

"Shelter for homeless women", Vivas Arquitectos (Spagna). Foto di José Hevia.

"Shelter for homeless women", Vivas Arquitectos (Spagna). Foto di José Hevia.

"Shelter for homeless women", Vivas Arquitectos (Spagna). Foto di José Hevia.

"Shelter for homeless women", Vivas Arquitectos (Spagna). Foto di José Hevia.

Menzione speciale al progetto 18 Intergenerational Social Housingdi Emiliano López Mónica Rivera Arquitectos, Maiorca (Spagna).


La Giuria ha riconosciuto in questo intervento "un’elevata qualità del progetto, ritenuta esemplare per un edificio di piccola scala all’interno di un zona marginale a elevata presenza turistica, offrendo degli alloggi con un'ampia gamma di opportunità intergenerazionali. L'edificio propone una reinterpretazione dei principi bioclimatici tradizionali, interagendo con gli abitanti come utenti attivi. La facciata su strada mostra un rapporto umile e rispettoso con l'ambiente circostante con dettagli ben risolti; al contrario la facciata interna ha un linguaggio più contemporaneo e risponde agli aspetti funzionali e bioclimatici. Un altro punto di attenzione riguarda gli spazi comuni che possono favorire l'incontro tra i residenti. La giuria evidenzia la necessità di mantenere la qualità dell'architettura nelle aree marginali; nonostante l’intervento sia di piccola scala esso è da intendersi come esempio anche per aree più ampie".

"18 Intergenerational Social Housing", di Emiliano López Mónica Rivera Arquitectos, Maiorca (Spagna). Foto di José Hevia.

"18 Intergenerational Social Housing", di Emiliano López Mónica Rivera Arquitectos, Maiorca (Spagna). Foto di José Hevia.

"18 Intergenerational Social Housing", di Emiliano López Mónica Rivera Arquitectos, Maiorca (Spagna). Planimetria del contesto.

"18 Intergenerational Social Housing", di Emiliano López Mónica Rivera Arquitectos, Maiorca (Spagna). Planimetria del contesto.

"18 Intergenerational Social Housing", di Emiliano López Mónica Rivera Arquitectos, Maiorca (Spagna). Planimetria del piano terra.

"18 Intergenerational Social Housing", di Emiliano López Mónica Rivera Arquitectos, Maiorca (Spagna). Planimetria del piano terra.

"18 Intergenerational Social Housing", di Emiliano López Mónica Rivera Arquitectos, Maiorca (Spagna). Planimetria del piano primo.

"18 Intergenerational Social Housing", di Emiliano López Mónica Rivera Arquitectos, Maiorca (Spagna). Planimetria del piano primo.

"18 Intergenerational Social Housing", di Emiliano López Mónica Rivera Arquitectos, Maiorca (Spagna). Sezione.

"18 Intergenerational Social Housing", di Emiliano López Mónica Rivera Arquitectos, Maiorca (Spagna). Sezione.

"18 Intergenerational Social Housing", di Emiliano López Mónica Rivera Arquitectos, Maiorca (Spagna). Dettaglio costruttivo.

"18 Intergenerational Social Housing", di Emiliano López Mónica Rivera Arquitectos, Maiorca (Spagna). Dettaglio costruttivo.

"18 Intergenerational Social Housing", di Emiliano López Mónica Rivera Arquitectos, Maiorca (Spagna). Foto di José Hevia.

"18 Intergenerational Social Housing", di Emiliano López Mónica Rivera Arquitectos, Maiorca (Spagna). Foto di José Hevia.

"18 Intergenerational Social Housing", di Emiliano López Mónica Rivera Arquitectos, Maiorca (Spagna). Foto di José Hevia.

"18 Intergenerational Social Housing", di Emiliano López Mónica Rivera Arquitectos, Maiorca (Spagna). Foto di José Hevia.

"18 Intergenerational Social Housing", di Emiliano López Mónica Rivera Arquitectos, Maiorca (Spagna). Foto di José Hevia.

"18 Intergenerational Social Housing", di Emiliano López Mónica Rivera Arquitectos, Maiorca (Spagna). Foto di José Hevia.

"18 Intergenerational Social Housing", di Emiliano López Mónica Rivera Arquitectos, Maiorca (Spagna). Foto di José Hevia.

"18 Intergenerational Social Housing", di Emiliano López Mónica Rivera Arquitectos, Maiorca (Spagna). Foto di José Hevia.

Complessivamente, alle 10 edizioni del Premio hanno partecipato 339 progetti. 

Tutte le schede dei progetti presentati alle varie edizioni sono visibili sul sito premiobaffarivolta.ordinearchitetti.mi.it



Albo dei vincitori:
2025 Vivas Arquitectos, Spagna
2023 H Arquitectes, Spagna
2021 Peris+Toral Arquitectes, Spagna
2019 Vandkunsten Architekten, Danimarca
2017 Duplex Architekten, Svizzera
2015 H Arquitectes+DataAE, Spagna
2013 Atelier Kempe Thill, Olanda
2011 Zanderroth Architekten, Germania
2009 Kis Péter Épìtészmuterme, Ungheria
2007 Guillermo Vàsquez Consuegra, Spagna

Potrebbe interessarti

30.01.2026 Call

Ordine aperto - Call Fuorisalone 2026

La Fondazione dell'Ordine degli Architetti PPC di Milano, durante lo svolgimento del Fuorisalone della Design Week (20-26 aprile 2026), mette temporaneamente a disposizione in maniera gratuita, una parte degli spazi della sede di via Solferino agli iscritti all'Albo A.P.P.C. di Milano e/o ad enti senza scopo di lucro per esporre progetti, prototipi e lavori inerenti tutte le scale del progetto, favorendo il dialogo tra professione, ricerca e produzione culturale.

Scopri di più
27.01.2026 Bandi

Golden Cubes Awards 2023-2026: UIA Architecture & Children

Il CNAPPC bandisce l'edizione nazionale del Premio UIA Architecture & Children Golden Cubes Awards, promosso da UIA Unione Internazionale degli Architetti per promuovere consapevolezza e qualità dell'architettura, stimolando le giovani generazioni.

Scopri di più
21.01.2026 Ordine

Variante PGT del Comune di Milano: gli esiti della call

Pubblicati gli esiti della call, con i contributi dell'Ordine alla parziale variante al PGT del Comune di Milano

Scopri di più

CONTATTACI

Ordine Architetti P.P.C. Della provincia di Milano

C.F. 80138830155

Via Solferino 17-19 20121 Milano

Orari lunedì-venerdì Dalle 9.30 alle 13.00 Dalle 14.00 alle 16.00

+39 02 62534 1 segreteria@ordinearchitetti.mi.it segreteria@oamilano.it (PEC)

FONDAZIONE DELL’ORDINE DEGLI ARCHITETTI P.P.C DELLA PROVINCIA DI MILANO

C.F. e P.iva 12392280157

Via Solferino 17-19 20121 Milano

Orari lunedì-venerdì Dalle 9.30 alle 13.00 Dalle 14.00 alle 16.00

+39 02 62534 390 fondazione@architettura.mi.it fondazione@oamilano.it (PEC)

UFFICIO STAMPA

BEYOND
REPUTATION & MEDIA
Francesco Cianfanelli architettimilano@beyondpress.it Tel. +39 328 7698779
SEGUICI SU