Caricamento...

MARIANA ELENA MACHADO BLANCO

Matricola: 23635

Sezione: A - a architetto

Laurea: EST. 2022

Prima iscrizione: 28.04.2025

Iscrizione: 28.04.2025

Iscritto abilitazione: R.D. Lgs. 206/07 2025

MARIANA ELENA MACHADO BLANCO

2024

THE MODULAR CABIN

This project is part of a glamping resort, located in the Parco Nazionale dello Stelvio in Italy. The location of it was essential for the design definition, taking into account the dynamic aspect when looking at mountains, and the existing architecture around it. One strong characteristic to mention about this natural park, is it’s diverse natural scenarios, in specific, the Alpine landscapes, with peaks that can reach the 3,900 mts, making it an ideal location for nature lovers and adventurers. The design needed to be easy to transport, in order to be relocate it when necessary. The bearing structure is made up of wooden ballon frame, with an interior and exterior wood finishing, with the intention of creating a warm inviting space for the user to enjoy its stay.

2022

RE-ENERGY

The facility RE-Energy will be responsible to lead the investigation into renewable energies, what they are nowadays and what they will become. It is a mixed-used building. It mainly consists of a research center in which scientists, academics, and industry will have the opportunity to develop, experiment, and collaborate in one place, and at the same time offer to the neighbors and the general public the opportunity to integrate themselves into the program. The facility includes a short-stay hotel, cafeteria, learning spaces, multipurpose room, offices, laboratories, and an extended workshop where real-scale prototypes can be assembled. The insertion of these spaces will give people the opportunity to develop new abilities and put to use the ones that they already have, as well as increase their knowledge by participating for example in the learning forums. The building is located in a residential area, in the neighborhood of San Feliu de Llobregat in Barcelona. It is placed on a concrete existing platform, that is connected to the metro station L5, which passes by Barcelona’s downtown. The aim of this building is to recover an abandoned space that is no longer useful to the neighborhood. And in order to do that, it was necessary to propose a multifunctional program, as well as, for the public space to be accessible. The urban development aimed to be a place to escape from the city, given that assimilates itself to a forest where the paths orient the people to its common spaces or finally to the facility itself.

2020

PILING PAU CLARIS UP

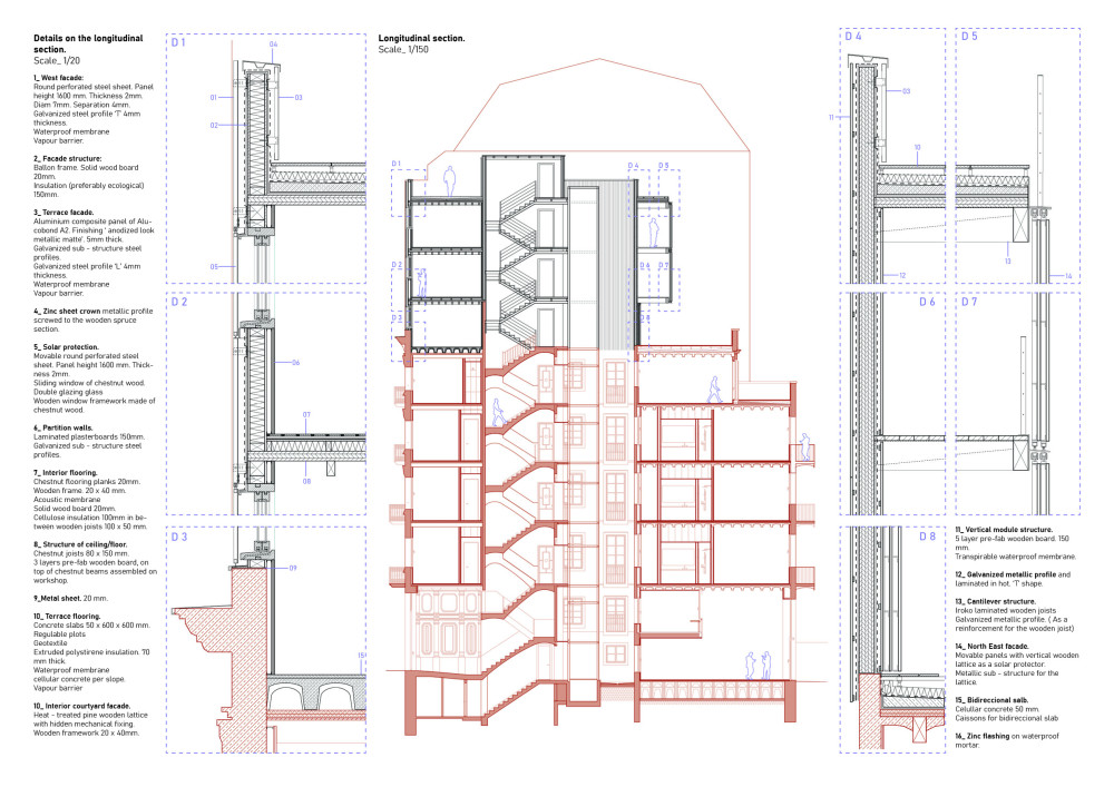
The intervention focuses on an addition of three floors over an existing building, where housing can be found nowadays, meaning that, when the construction takes place the occupants will stay. The project is located in Barcelona´s downtown, on Pau Claris street, which is a perpendicular street with an important connection to the urban infrastructure, significant when talking about the mobility of the materials being transported in a busy surrounding. The main material all over the project is wood. Starting from the core. CLT will define the perimeter, continuing with the vertical structure of ballon frame, followed by the flooring of a mixed system of CLT and wooden joists that would be assembled on the workshop; and finally, the facades, where each one of them has a diverse materiality, being the answer to the context where they are located. As in for the one facing Pau Claris (South West), made of perforated aluminum composite panel, the party wall (South East) of fiber cement panels, and finally the terrace facade (North East) defined by vertical heat-treated timber planks. It was important to show in the interior of the new building the new materiality and with this the contrast between warm and cold materials

2020

BIO-Estructura

BIO-Estructura focuses to give the interior facade of the block the tools to sustain itself and at the same time extend the interior of each flat. It’s a metallic modular structure that adapts itself to the existing structure. The system works as a big greenhouse, but at the same time, it generates energy, reflecting the light to places that naturally do not reach, creating a vertical seasonal garden that works as a noise barrier and regulates the temperature of the interior of the flat by the greenhouse effect that is created, and at last recycling the rainwater.